Москва, ДЦ AFI2B Тагильская
г. Москва, м. Бульвар Рокоссовского
Описание
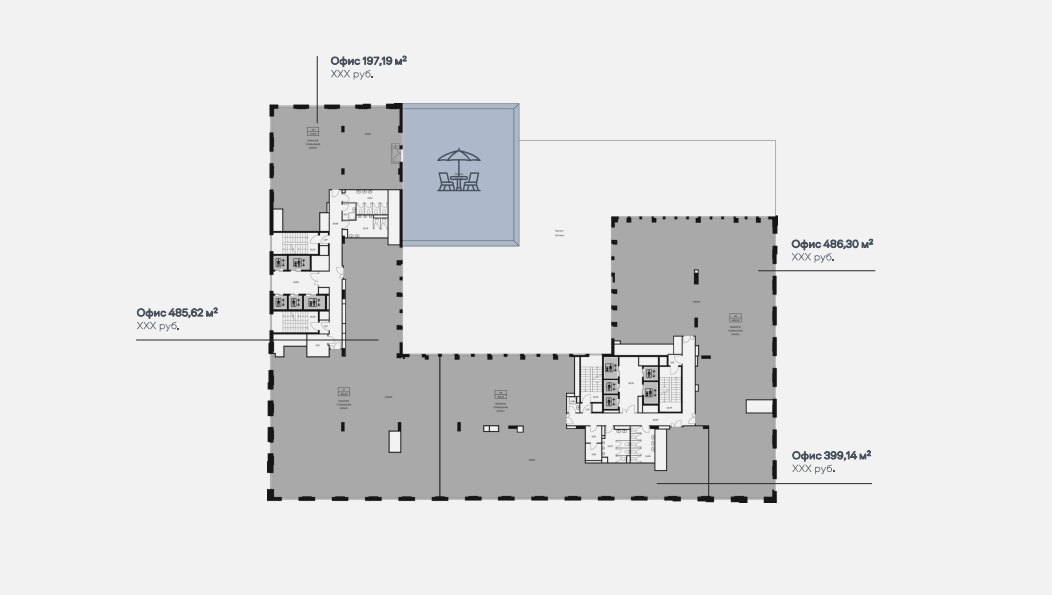
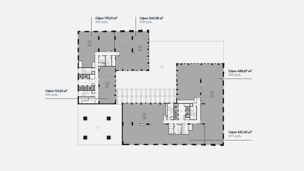
Офисные помещения - 32 000 м2
Девелопер AFI Development
26 этажей
Паркинг - 200 машиномест
Срок реализации 3 кв 2026г.
Офисы в продажу от 114 м2
Цена продажи - от 230 000 руб/м2
